Bungalow de Stockage pour Produits Phytosanitaires
Nos bungalows de stockage pour produits phytosanitaires permettent de répondre aux besoins de stockage de produits dangereux. Que ce soit pour les agriculteurs ou les entreprises, ils permettent d’obtenir rapidement une solution de stockage isolée, adaptée pour les produits liquides à risque.
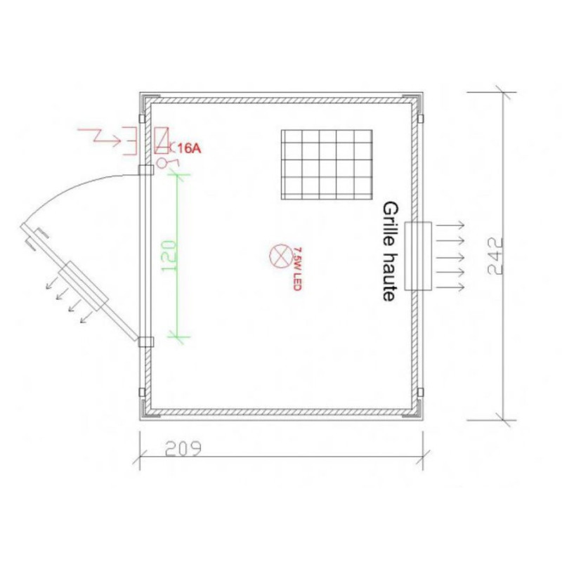
Notre Bungalow de stockage pour produits phytosanitaires dispose d’un plancher en acier galvanisé avec un bac de récupération surmonté d’une grille en acier galvanisé. Le soubassement est renforcé, comprenant un passage de fourches pour permettre la manipulation du module avec un engin de levage équipé de fourches de 250cm. Le module est équipé d’une porte, de deux grilles d’aération, d’un néon LED, d’un chauffage et d’une prise de courant.
Le délai de livraison est de 8 semaines maximum à date de commande pour ce module, quelle que soit la dimension choisie, car il est fabriqué sur commande.
Pour certains clients, nous avons fabriqué ce module avec des dimensions sur-mesure.
Descriptif Bungalow de stockage pour produits phytosanitaires neuf
Le Bungalow phytosanitaire est constitué d’une ossature en acier galvanisé et laqué couleur gris Clair RAL 9002.
Le profil du toit est en acier galvanisé laqué gris clair RAL 9002, épaisseur 1,5 mm – hauteur 150 mm, avec 4 points d’élingage pour déplacement à la grue.
Les profils du soubassement sont en acier galvanisé laqué couleur gris clair RAL 9002, épaisseur 2 mm – hauteur 160 mm, avec passage de fourches (entraxe 90cm) pour déplacement avec chariot élévateur équipé de fourches de 250cm.
La toiture est en panneaux sandwich à mousse rigide de polyuréthane, épaisseur 30 mm, Euroclasse Cs3d0. La couverture de toiture est en acier galvanisé ondulé, avec évacuations des eaux pluviales sur les côtés.
Les parois sont en panneaux sandwich à mousse rigide de polyuréthane, épaisseur 40 mm (couleur gris clair RAL 9002), Euroclasse Cs3d0.
Le plancher est en acier galvanisé épaisseur 1,2 mm – hauteur 120 mm, avec un bac de récupération, surmonté d’une grille en acier galvanisé (maille 35 x 76 mm). La portée du plancher est 500 kg/m² (ne pas utiliser de transpalette, possibilité en option).
Le soulèvement de ce module se fait à vide uniquement.
Menuiserie en aluminium laqué blanc RAL 9010
Le Bungalow phytosanitaire est équipé d’une porte pleine dimensions 134 x 220 cm (120 cm de passage) isolée, avec 1 grille d’aération en PVC dimensions 50 x 23 cm.
Le module est équipé d’une seconde grille d’aération en PVC dimensions 50 x 23 cm sur la face arrière.
Installation électrique en 220 V
Le Bungalow phytosanitaire est équipé d’un interrupteur, d’un néon LED ou d’un plafonnier LED selon dimension, d’un convecteur 1000 watts, d’une prise de courant, d’un tableau électrique incluant inter-différentiel et disjoncteurs (6 KW maximum) et d’une boîte extérieure de raccordement.
Caractéristiques techniques
DIMENSIONS
Hauteur extérieure : 247 cm
Hauteur intérieure : 202 cm
Largeur : 242 cm
Longueur possibles : 209, 309, 409, 509 ou 609 cm
OSSATURE
Matière : Acier galvanisé et laqué
Couleur : Gris clair RAL 9002
Épaisseur : 1,5 mm
Soubassement : hauteur 160 mm, épaisseur 2 mm
Toiture : hauteur 150 mm
Manutention : 4 prises sur la toiture pour crochets de levage, soubassement avec passage de fourches pour manipulation avec un chariot élévateur équipé de fourches de 250 cm
MENUISERIES
Matière : Aluminium laqué blanc RAL 9010
Porte(s) : 1 porte pleine dim. 134 x 220 cm (120 cm de passage) isolée
Ventilation(s) : 2 grilles d’aération en PVC dim. 50 x 23 cm, une sur la porte, l’autre sur la face arrière
PAROIS ET TOITURE
Matière : Panneaux sandwich
Isolation : Mousse rigide de polyuréthane
Épaisseur Parois : 40 mm
Épaisseur Toiture : 30 mm
Couverture Toiture : Tôle d’acier galvanisé Ondes grecques
Couleur parois : Gris clair RAL 9002
PLANCHER
Structure : acier galvanisé
Épaisseur : 1,2 mm
Equipement : bac de récupération
Plancher : grille en acier galvanisé (maille 35×76 mm = non adapté pour utilisation d’un transpalette / possibilité de maillage resserré en option pour pouvoir utiliser un transpalette)
Hauteur : 120 mm
Portée : 500 kg/m²
ÉLECTRICITÉ
Éclairage : 1 interrupteur + 1 plafonnier LED ou 1 néon LED (selon dimension)
Chauffage : 1 convecteur 1000 W
Prise : 1 prise de courant
Tableau : 1 tableau incluant inter-différentiel et disjoncteurs
Raccordement : 1 boîte extérieure de raccordement
Options possibles
Extracteur d’air 90m3/h avec interrupteur
Caillebottis avec maillage resserré adapté à l’utilisation d’un transpalette
Hauteur sous plafond de 2,40 m, la porte reste en hauteur 2,20 m
Garantie : 1 an










